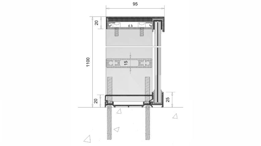
ADLC-95 Steel Reinforced System

ADLC-95 Steel Reinforced System

Sistem devrim niteliğinde yenilikler getirmektedir. Bütün parçalar ve profiller lego anlayışıyla sökülüp takılabilmekte, birleşim
parçaları gizlenebilmekte, montaj tamamlandığında dışarıdan bakıldığında hiçbir montaj vidası görülmemektedir.
Çelik takviyeli lama üst küpeşte içine takılarak 4,5 metreye kadar hiç dikme kullanmadan uygulama yapılabilmektedir.
4,5 metreden sonra 2,5 metre ara ile 15*75 özel çekme dikme kullanılır.
Tüm statik hesapları yapılmış, sistem çarpma ve itme testlerinde en yüksek derecelerle geçmiştir. Hem ekonomik hem estetik en
önemlisi çok sağlam bir sistemdir.

BS-6180 ve EN-12600 normlarına göre yapılan testlerden başarıyla geçmiştir.

ADLC-95 Steel Reinforced System
ADLC-95 Steel Reinforced System
ADLC-95 Steel Reinforced System

İnternet sitemizden en iyi şekilde faydalanabilmeniz ve internet sitemize yapacağınız ziyaretleri kişiselleştirebilmek için çerezlerden faydalanıyoruz. Dilediğiniz halde çerez ayarlarınızı değiştirebilirsiniz. Detaylı bilgi için tıklayınız

close
Whatsapp